
Подключение магнитолы в Камаз 5490 – задача, с которой рано или поздно сталкиваются владельцы и водители этого грузовика. Важно понимать, что правильная установка и подключение устройства не только обеспечит стабильную работу аудиосистемы, но и поможет избежать проблем с электрической системой автомобиля в будущем. В этой инструкции мы рассмотрим ключевые этапы подключения магнитолы в Камаз 5490, а также дадим рекомендации по выбору компонентов.
1. Подготовка инструментов и материалов. Для начала убедитесь, что у вас есть все необходимые инструменты: набор отверток, мультиметр, возможно, адаптеры для подключения проводов, а также сама магнитола, провода и разъемы. Прежде чем приступить к работе, необходимо отключить аккумулятор, чтобы избежать коротких замыканий и повреждения электрооборудования.
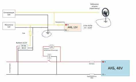
2. Подключение проводки. Камаз 5490 оснащен стандартной системой подключения для магнитол, что упрощает процесс установки. Обратите внимание на питание устройства: основные провода – это «плюс» и «минус». Для питания магнитолы обычно используется провод с красным цветом для положительного контакта и черный для отрицательного. Также важно правильно подключить антенный кабель, который обеспечит качественный прием радио.
3. Установка магнитолы в панель. После того как все провода будут подведены, приступайте к монтажу самой магнитолы. Камаз 5490 имеет специальную панель для установки аудиосистемы. Убедитесь, что магнитола надежно зафиксирована в слот и не мешает управлению другими функциями автомобиля. Проверяйте подключение каждого кабеля, чтобы избежать неправильного контакта.
4. Проверка работы устройства. После завершения всех подключений включите аккумулятор и включите магнитолу. Проверьте работу всех функций: радио, USB, AUX и других. Также убедитесь, что звуковая система работает без перебоев, а качество звука соответствует вашим ожиданиям.
Как подключить магнитолу в Камаз 5490: пошаговая инструкция

Подключение магнитолы в Камаз 5490 требует внимательности, поскольку необходимо правильно выполнить электрические соединения, чтобы устройство работало корректно. Для этого потребуется минимальный набор инструментов и знаний о проводке автомобиля.
Шаг 1: Подготовка инструментов и материалов
Для подключения магнитолы вам понадобятся:
- Магнитола с комплектом проводов
- Отвертка
- Изолента или термоусадочные трубки
- Пинцет или клещи для работы с проводами
- Мультиметр для проверки проводки (при необходимости)
Шаг 2: Отключение аккумулятора
Прежде чем начать, обязательно отсоедините минусовую клемму аккумулятора, чтобы избежать короткого замыкания при подключении проводов.
Шаг 3: Демонтаж старой магнитолы
Если в автомобиле уже была установлена магнитола, начните с ее демонтажа. Обычно для этого нужно открутить пару крепежных винтов или болтов, а затем аккуратно извлечь устройство из монтажной панели. При этом помните, что на задней части магнитолы подключены провода питания, акустики и антенны.
Шаг 4: Подключение проводов питания
На задней панели магнитолы есть несколько основных разъемов. Внимательно изучите их и подключите следующие провода:
- Питание (12 В) – провод с красной изоляцией. Подключается к клемме питания на автомобиле.
- Зажигалка (ACC) – провод с желтой изоляцией. Он подает напряжение при включении зажигания.
- Заземление (GND) – провод с черной изоляцией. Подключите к металлическому корпусу автомобиля или к специальному заземляющему контакту.
Перед подключением проверьте все соединения с помощью мультиметра, чтобы избежать ошибок.
Шаг 5: Подключение аудиокабелей
На магнитоле также присутствуют контакты для подключения колонок. Определите, какой провод соответствует каждому из каналов (левый и правый звук) и подключите их к соответствующим колонкам в кабине.
Шаг 6: Подключение антенны
Подключите антенну к соответствующему разъему на магнитоле. Если в вашем Камазе нет штатной антенны, можно установить внешнюю.
Шаг 7: Установка магнитолы в панель
После того как все провода подключены, аккуратно вставьте магнитолу в монтажный отсек на панели и зафиксируйте ее с помощью крепежных элементов. Проверьте, что она надежно зафиксирована и не болтается.
Шаг 8: Подключение аккумулятора и проверка работы
После установки магнитолы подключите минусовую клемму аккумулятора и включите зажигание. Проверьте работоспособность магнитолы: убедитесь, что она включается, принимает радио, проигрывает музыку через подключенные колонки и работает без сбоев.
Шаг 9: Завершение установки
Если все работает правильно, закрепите панель и кабели с помощью изоленты или термоусадочных трубок, чтобы избежать их повреждения в процессе эксплуатации.
Подключение магнитолы в Камаз 5490 – процесс несложный, если следовать инструкциям и соблюдать осторожность при работе с проводкой. Правильная установка обеспечит долговечность устройства и качество звука.
Подготовка инструментов и материалов для подключения магнитолы

Перед началом установки магнитолы в Камаз 5490 необходимо собрать все необходимые инструменты и материалы для бесперебойного выполнения работы. Правильная подготовка существенно ускорит процесс и уменьшит вероятность ошибок.
Необходимые инструменты:
- Отвертка (крестовая и плоская) – для снятия панели и крепежных элементов магнитолы.
- Ключи и гаечные ключи – для отсоединения аккумулятора и других элементов электросистемы, если потребуется.
- Кусачки – для обрезки проводов, если они будут лишними или слишком длинными.
- Изолента – для безопасного изолирования проводов и предотвращения коротких замыканий.
- Клеммные зажимы – для надежного соединения проводов.
- Мультиметр – для проверки напряжения и тестирования соединений после подключения.
- Паяльник – если потребуется паять провода или соединять их в труднодоступных местах.
Материалы:
- Провода – необходимо заранее выбрать кабели для подключения питания и акустики. Для питания и питания антенны используется провод сечением не менее 1,5 мм², для динамиков – 2,5 мм².
- Переходник или адаптер – если штатное крепление магнитолы отличается от модели устройства, потребуется переходник.
- Клеммы – для соединения проводов с контактами магнитолы и автомобиля.
- Антенна – если ваша магнитола требует подключения внешней антенны для приема радио.
- Магнитола с комплектующими – проверьте, чтобы в комплекте были все необходимые элементы для подключения: кабели, болты и крепежи.
Обратите внимание на качество материалов и инструментов. Плохое соединение проводов или использование неподходящих крепежей может привести к неисправности устройства или даже к коротким замыканиям. При подготовке всех компонентов к подключению учитывайте, что электросистема Камаз 5490 требует внимательности и аккуратности, особенно в части безопасности.
Выбор подходящей магнитолы для Камаз 5490

1. Совместимость с размером
Магнитола должна подходить по размеру к посадочному месту на панели. Для Камаз 5490 чаще всего используется стандарт 2DIN, поэтому перед покупкой важно убедиться, что выбранная модель соответствует этому формату.
2. Качество звука
Звук в кабине грузовика должен быть чистым и мощным, чтобы перекрывать шум двигателя и дороги. Ищите магнитолы с поддержкой качественных усилителей и эквалайзеров, которые помогут настроить звук под индивидуальные предпочтения.
3. Подключение и интерфейсы
Магнитола должна поддерживать актуальные интерфейсы подключения, такие как Bluetooth для беспроводных звонков и аудиофайлов, USB-порты для подключения флешек и внешних устройств, а также AUX для подключения смартфонов. Некоторые модели также поддерживают зеркалирование экрана с мобильных устройств, что удобно для навигации.
4. Устойчивость к внешним условиям
Для грузовиков важна стойкость магнитолы к вибрации, перепадам температуры и пыли. Выбирайте модели с защитой от влаги и пыли, что обеспечит долгую работу устройства в условиях эксплуатации на дорогах.
5. Управление и интерфейс
Удобство управления играет ключевую роль. Магнитола должна быть оснащена крупными кнопками или сенсорным экраном с интуитивно понятным интерфейсом. Важно, чтобы доступ к основным функциям был быстрым и не отвлекал водителя от дороги.
6. Дополнительные функции
Некоторые магнитолы предлагают функции, которые могут быть полезны для дальнобойщиков, такие как GPS-навигация, встроенные камеры заднего вида или поддержка телевизионных приемников. Обратите внимание на наличие этих функций, если они важны для вашего маршрута.
Разборка панели и снятие старой магнитолы

Для начала отключите питание автомобиля, чтобы избежать короткого замыкания или повреждения электросистемы. Отключите аккумулятор, сняв клемму с отрицательной полярности.
Используя плоскую отвертку, аккуратно подденьте панель вокруг магнитолы. Важно действовать осторожно, чтобы не повредить декоративную отделку и не повредить крепления панели. Поддев панель, снимите её с помощью пластиковых инструментов, чтобы избежать царапин.
После того как панель снята, вам откроется доступ к магнитоле. Обычно она крепится двумя или четырьмя винтами, которые нужно открутить с помощью крестовой отвертки. Обратите внимание на расположение винтов и не перепутайте их с другими крепежами панели.
После удаления винтов аккуратно вытащите магнитолу из монтажного отсека. Важно соблюдать осторожность, чтобы не повредить разъемы подключения проводов. Для этого лучше всего слегка наклонить магнитолу в сторону, чтобы она освободилась от зацепов и легко вытащилась.
Когда магнитола освободится, отсоедините все проводные соединения: питание, акустические системы, антенну и другие. Запоминайте или записывайте, какие провода где подключены, это упростит процесс установки новой магнитолы.
После того как все провода отсоединены, старую магнитолу можно полностью снять. Теперь можно приступать к установке новой магнитолы, соблюдая порядок подключения проводов.
Подключение проводки к новой магнитоле

Перед подключением проводки к новой магнитоле в Камаз 5490 убедитесь, что источник питания отключен. Для этого отсоедините аккумулятор или выключите зажигание.
В комплекте с магнитолой вы найдете разъемы для подключения проводки. Основные провода: питание, масса, динамики, антенна и управляющие сигналы. Важно подключать их в соответствии с инструкцией, так как неверное подключение может привести к повреждению устройства или электрической системы автомобиля.
Первым подключите провод питания (обычно красный провод). Подключение следует осуществить через предохранитель на 10-15 А, чтобы защитить систему от перегрузок. Провод питания должен быть подключен к источнику постоянного тока на автомобиле, который активируется с включением зажигания.
Далее подключите провод массы (черный провод). Он должен быть подключен к металлической части кузова автомобиля, чтобы обеспечить стабильный контакт и минимизировать помехи в работе магнитолы.
Подключение проводов для динамиков осуществляется в зависимости от конфигурации системы. Обычно для каждого динамика существуют два провода: плюс и минус (оба провода могут быть одного цвета, поэтому важно ориентироваться на маркировку). Подключите их к соответствующим выходам на магнитоле, соблюдая полярность.
Для подключения антенны используйте стандартный коаксиальный кабель, который вставляется в антенное гнездо магнитолы. Убедитесь, что соединение надежно, без зазоров.
Если в магнитоле предусмотрены дополнительные функции, такие как управление через руль или подключение камеры заднего вида, следует подключить соответствующие управляющие провода. Чаще всего для этого используются разъемы ISO или отдельные контакты, которые указаны в инструкции к магнитоле.
После подключения всех проводов, проверьте их надежность, убедитесь в отсутствии коротких замыканий и правильности соединений. Подключите аккумулятор и включите зажигание, чтобы проверить работу магнитолы. Если все функции работают корректно, закрепите магнитолу в установленном месте.
Установка магнитолы в штатное место

Начните с демонтажа панели, где будет установлена магнитола. Используйте пластиковые инструменты, чтобы не повредить обшивку и не оставить следы. Аккуратно отсоедините декоративные элементы панели и освободите доступ к месту установки.
Затем освободите слот под магнитолу. На Камаз 5490 в этом месте обычно находятся крепления, которые нужно ослабить. Для этого используйте подходящие инструменты, чтобы не повреждать крепежные элементы.
После снятия панели и освобождения пространства подключите кабели питания и акустики. Важно точно соблюсти полярность проводов. Обычно на проводах идет маркировка, которая указывает на положительный и отрицательный контакт. Подключите антенну, если она требует отдельного подключения.
После подключения всех необходимых проводов вставьте магнитолу в установленный слот. Убедитесь, что она надежно фиксируется, и проверьте, чтобы все соединения были закреплены. Чтобы избежать повреждений, не прикладывайте чрезмерное усилие при установке устройства в слот.
Закрепите магнитолу с помощью штатных крепежей, которые идут в комплекте. Проверьте, что она надежно зафиксирована, и не двигается при попытке сдвигать или тянуть за элементы управления.
После установки магнитолы и проверки всех подключений, соберите обратно панель управления, аккуратно зафиксировав ее в исходном положении. Подавайте питание и убедитесь, что устройство работает корректно: звук, управление и подключение к радио или Bluetooth должны быть стабильными.
Проверка работы магнитолы и настройки

После установки магнитолы в Камаз 5490 необходимо проверить ее работоспособность и выполнить базовые настройки для обеспечения стабильной работы устройства. Выполните следующие шаги:
- Включение магнитолы: Включите питание устройства, используя ключ зажигания или кнопку на панели магнитолы, в зависимости от подключения.
- Проверка источников сигнала: Убедитесь, что магнитола принимает сигнал с выбранного источника (AM/FM радио, Bluetooth, AUX, USB). Для этого выберите нужный источник с помощью кнопок на панели.
- Настройка звука: Установите уровень громкости на комфортный уровень. Используйте регуляторы басов, высоких частот и баланса для оптимизации звучания в кабине.
- Проверка антенны: Убедитесь, что антенна подключена правильно, и что сигнал радио не прерывается. Если сигнал слабый, проверьте антенну на повреждения.
- Bluetooth-соединение: Если магнитола поддерживает Bluetooth, активируйте его на устройстве и подключите через настройки. Проверьте качество связи и возможность воспроизведения музыки с телефона.
- Настройка эквалайзера: Проверьте предустановленные режимы эквалайзера и выберите наиболее подходящий для ваших предпочтений или условий дороги.
- Подключение к AUX или USB: Если вы используете внешние устройства, подключите их и проверьте, правильно ли магнитола распознает подключенные источники. Для USB-устройств убедитесь, что файловая система совместима.
- Проверка работы микрофона (для моделей с функцией hands-free): Протестируйте функцию громкой связи, чтобы убедиться в чистоте звука и корректной работе микрофона. Используйте телефон для звонка и проверьте качество связи.
- Обновление прошивки: Некоторые модели магнитол могут требовать обновления программного обеспечения. Проверьте наличие новых версий на официальном сайте производителя и следуйте инструкциям для обновления.
- Сохранение настроек: После настройки всех параметров сохраните их в память устройства, чтобы при следующем включении магнитола автоматически использовала ваши предпочтения.
После выполнения этих шагов магнитола должна работать стабильно, обеспечивая качественное звучание и удобство в эксплуатации. Если возникнут проблемы, рекомендуется проверить подключение проводки и, при необходимости, обратиться к специалисту для диагностики устройства.
Вопрос-ответ:
Как подключить магнитолу в Камаз 5490 шаг за шагом?
Для того чтобы подключить магнитолу в Камаз 5490, необходимо выполнить несколько шагов. Сначала нужно подготовить инструменты: отвертку, набор проводов и изоленту. Затем отключите аккумулятор, чтобы избежать короткого замыкания. Установите магнитолу в специальное место на панели, если оно предусмотрено. Подключите питание и антенну, соблюдая полярность проводов. После этого подключите провода для динамиков и убедитесь, что все соединения надежны. Включите аккумулятор и проверьте работу устройства.
Нужно ли отключать аккумулятор при подключении магнитолы в Камаз 5490?
Да, перед подключением магнитолы в Камаз 5490 рекомендуется отключить аккумулятор. Это предотвратит возможное короткое замыкание и защитит электронику автомобиля от повреждений. Выключив аккумулятор, вы обеспечите безопасность при работе с проводами и подключении устройства.
Какие провода нужно подключить к магнитоле в Камаз 5490 для работы динамиков?
Для подключения динамиков к магнитоле в Камаз 5490 нужно правильно соединить провода, соответствующие каждому динамику. Обычно в комплекте с магнитолой идут провода для подключения. Они могут быть подписаны или иметь разные цвета для разных каналов (передний левый, передний правый, задний левый и правый). Необходимо подсоединить эти провода к соответствующим контактам на магнитоле, а затем на динамиках. Если проводка отсутствует, можно использовать стандартные соединительные кабели, заранее подготовив их для установки.
Какие инструменты понадобятся для установки магнитолы в Камаз 5490?
Для установки магнитолы в Камаз 5490 вам понадобятся следующие инструменты: отвертка (обычно крестовая), изолента для изоляции проводов, набор проводов для подключения питания и динамиков, а также монтажные кронштейны, если они не входят в комплект магнитолы. Важно иметь под рукой плоскогубцы для надежной фиксации проводов и мультиметр для проверки правильности соединений.
